Sauna Tuula
Sauna Tuula
Couldn't load pickup availability
Sauna Tuula is one of the most popular choice from all the sauna plans. It features a minimalistic external silhouette: double pitched roof, charred timber cladding and a well thought out interior layout. Internal shower means comfy, cold (or hot) showers between sauna sessions.
What's inside?
What's inside?
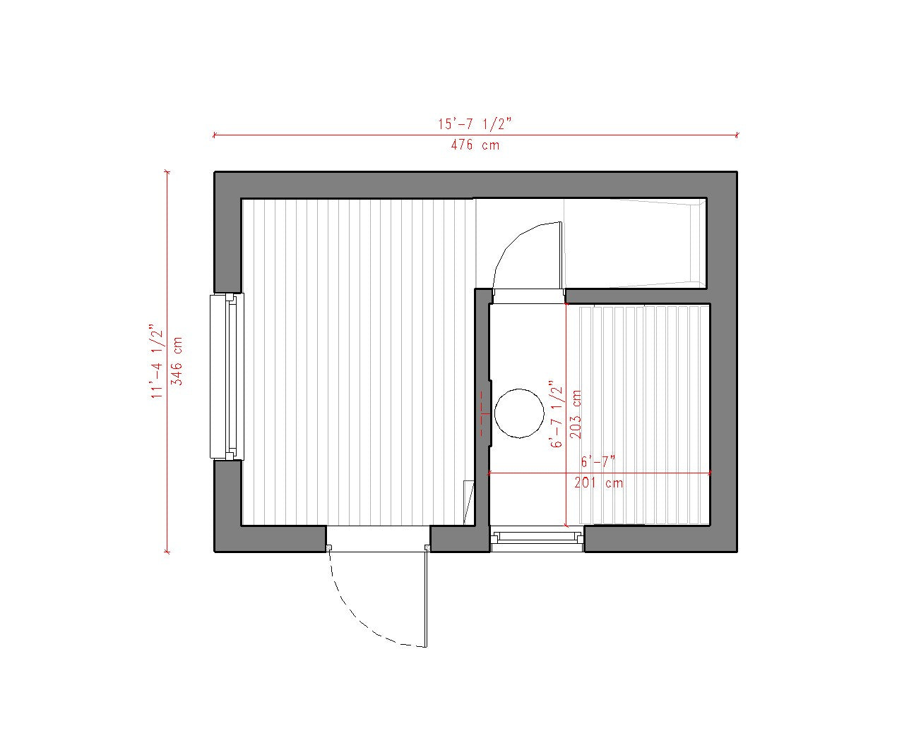
Sauna Dimensions
Sauna Dimensions
Dimensions: 15 m² (4.5m x 3.4m)
Hot Room Dimensions: 6' 8" x 6' 8" / 2m x 2m
Height: 3.7m
Suitable for: 4 - 5 people
Can I customise this sauna?
Can I customise this sauna?
Yes! If you want to customize your design, add the Project Customization Product to your shopping cart. To confirm which change package is right for your needs, get in touch
with us before choosing the changes. Get in touch with us in the Contact tab or book a free project consultation.









Why choose our sauna plans?

Build with confidence
Whether you're a first-time builder or you have some experience, our complete sauna package provides everything you need. You will get detailed drawings, a precise material list, a technical project description. You can always contact us if you have any questions about the construction.

The best sauna experience
The ventilation void in our designs allows the wood to breathe. In designs with an electric stove, mechanical ventilation is used, thanks to which there is a smaller difference in temperature up and down in the hot part and better air circulation. Breathe freely during a sauna session.

Enjoy sauna life
Experience the health benefits of regular sauna use. Improve your sleep, relax your mind, and enjoy some peaceful moments. Invite your family or friends and enjoy this moment together.
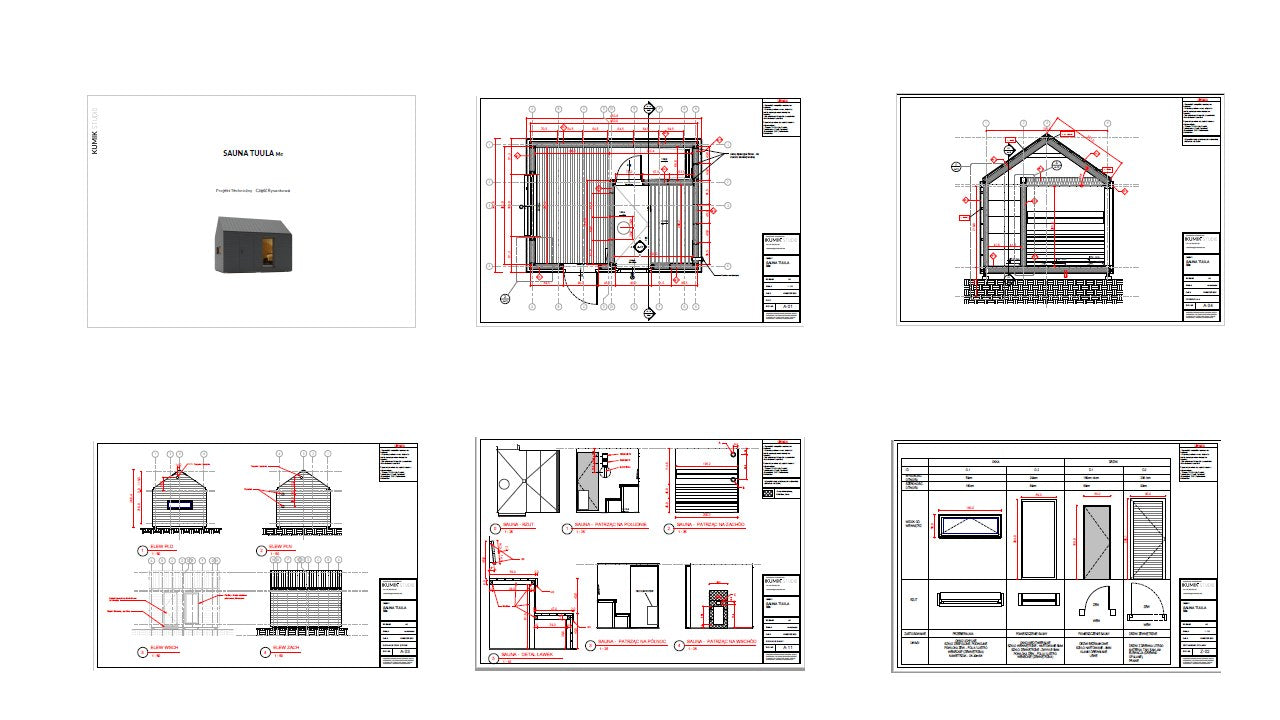
What's inside the plan set package?
Sauna Plans Reviews
Build Gallery
Check out inspiring sauna builds from customers who used our designs.
Frequently Asked Questions
How much does a sauna costs to build?
It's really hard to answer this question-materials, labor cost, and local conditions all differ. To be safe, I'd recommend a cost of about 200-250$ per sq ft, which is the US national average for a new residential construction.
What drawings are included in your sauna plans?
Our plans are always very detailed, so that all the questions are answered for you, before you start your build. The plans are both for professionals and amateur builder. The exact number of pages may vary from model to model, but usually it's around 17 pages. We always include: floor plans, foundation plan, building elevations, sections, details, door and window schedules.
What file types do the plans come in?
All our plans come in a PDF file format. The material lists come in Excel format.
Can I change the heater type?
Yes. Our saunas are designed so that you can use electric or wood heater. Get in touch with us, and we'll provide you with tips on what stove will be suitable for your sauna.
Can you customize my sauna design?
At the moment we do not offer customizations due to high workload. We do offer a complete custom project design and project management though.
Can I pay in my own currency?
If you want to pay in your own currency, pick 'bank deposit' at the checkout. For the correct amount, just google e.g., “1000 PLN in USD” and this is your amount.
Can you design a custom sauna for me?
Yes, we can do any custom design as needed. Get in touch with us in the 'Contact' tab or book a free project consultation. Prices for a custom project start at $2000.
Can I build multiple saunas using your designs?
Our standard license for each project permits you to build one sauna. If you want to build more saunas, contact us on contact@homemadesauna.com